Kitchens
Outdoors
Architecture
MISC
Contact
Menu
DEMORLA DESIGN & BUILD
Kitchens
Outdoors
Architecture
MISC
Contact
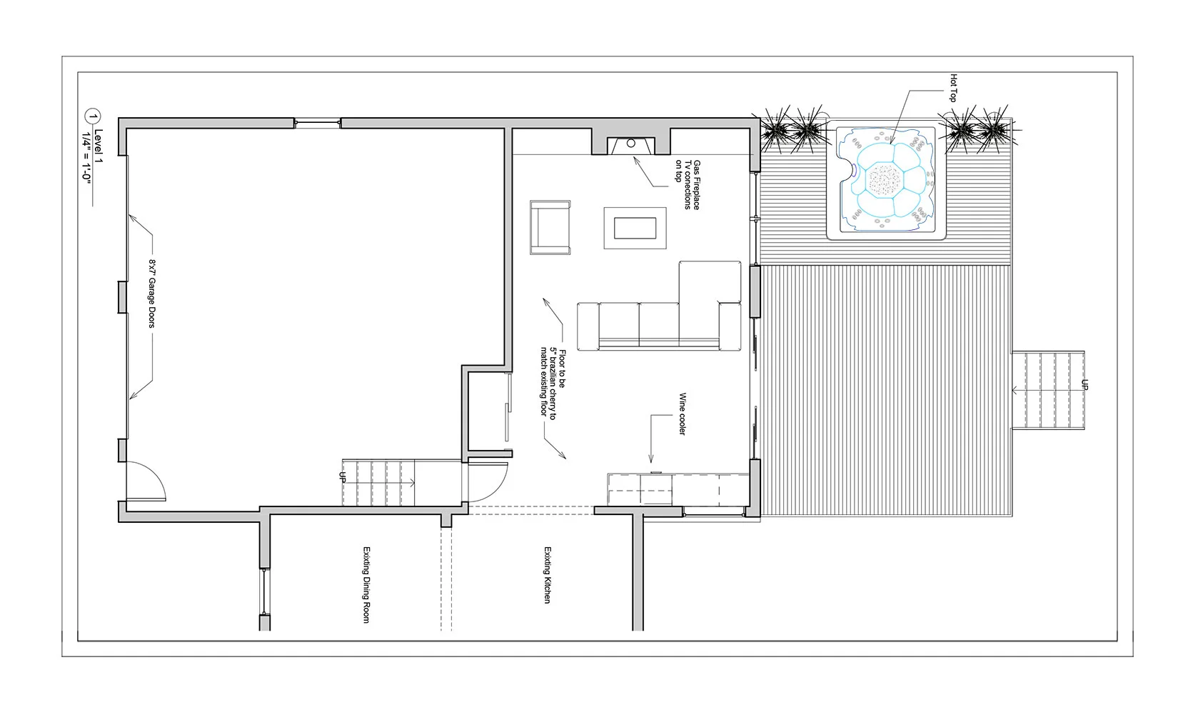
Home Addition, North Andover, MA.